ID CP2866767

Casa pe un nivel cu mansarda, teren 500mp NOU

ID CP2866767

229,000 €

Casă / Vilă cu 4 camere de vânzare
Sura Mica
120 mp
2026

Casă nouă (în construcție) design atractiv si spatii funcționale

Locatie - SIBIU - Sura Mica - Magazine in vecinatate, Autostrada si Aeroport la 7 minute distanta, Lacuri naturate, Spa ....

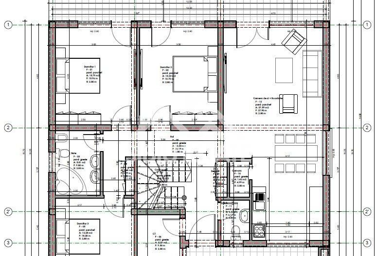
Casa noua pe un nivel, placa de beton si scari acces la pod/mansarda

- Hol larg ce permite garderoba, baie, camera tehnica

- Living spațios cu dinning si bucatarie

- Hol secundar ce conduce spre 3 dormitoare si o baie intima

Mansarda este un spatiu mare deschis unde poti realiza camera hobby, dormitoare sau ce are necesar familia ta

Terasă generoasă acoperita, accesibila din living si 2 dormitoare

Curte cu pavaj in fata si laterala casei unde intra 2-3 auto, in spate gazon

Casa se vinde la stadiu semifinisat ALB, cu incalzire in pardoseala, pompa de caldura, utilitatile bransate - apa/canal, curent

Oportunitate pentru familia ce caută confort și intimitate !

Termen de finalizare - 5 luni

Unele imagini sunt cu titlu de prezentare !!

Casa se vinde la 229.000 euro - poti rezerva acum. Suna si afla detalii .

Sibiu Estate - Casa ta, povestea noastra

Citește mai mult

  • Număr camere
    4
  • Dormitoare
    3
  • Număr bucătării
    1
  • Număr băi
    2
  • Geam la baie
    Da
  • Număr terase
    1
  • Număr locuri parcare
    3
  • Tip casă
    Individual
  • Suprafață utilă
    120 mp
  • Suprafață construită
    166 mp
  • Suprafață construită la sol (Amprentă)
    90.0 mp
  • Suprafață teren
    500 mp
  • Suprafață terasă
    14 mp
  • Deschidere
    18 m
  • Stadiu construcție
    În construcție
  • An construcție
    2026
  • Construcție nouă
    Da
  • Tip construcție
    Cărămidă
  • Are pod
    Da

Facilități

Acoperiș
Apă
Canalizare
Curent
Geamuri termopan
Iluminat stradal
Încălzire prin pardoseală
Izolație exterioară
Pompă de căldură
Străzi asfaltate
Străzi pietruite
Ușă intrare metal
Vedere panoramică
Diana Zicu
Consilier Imobiliar

0746107600


Solicită chiar acum o vizionare
Nume
Telefon
Email
Sună acum Solicită vizionare
Necesare:

Site-ul nu poate funcționa corect fără aceste cookie-uri. Vezi cookie-urile

Statistică:

Strângem statistici anonime despre voi, vizitatorii unici, pentru a vă îmbunătăți experiența dumneavoastră. Vezi cookie-urile

Marketing:

Pentru a ne promova mai eficient serviciile noastre, folosim cookies pentru a vă identifica și a vă oferi proprietăți și servicii personalizate. Vezi cookie-urile

Acest site folosește cookies, află detalii. Alege ce tipuri de cookies dorești să permitem: