ID CP2887144

Casa individuala noua Sibiu, energetic A

ID CP2887144

350,000 €

Casă / Vilă cu 4 camere de vânzare
Nord-Vest, Sibiu
120 mp
2025

Casa noua 4 camere, 3 bai - clasa energetica A !!

La 10 minute de centru Sibiu, cca 3 km - spatiu, confort și tehnologie modernă

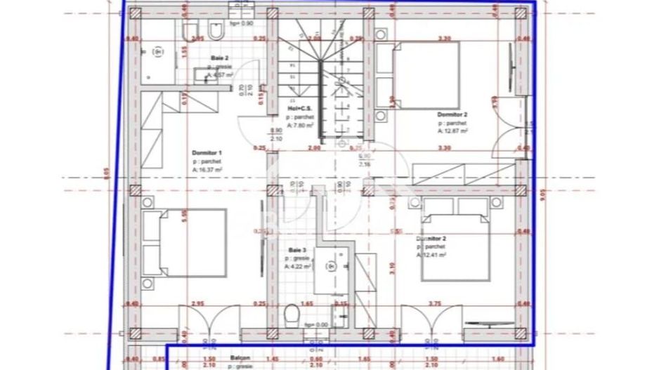
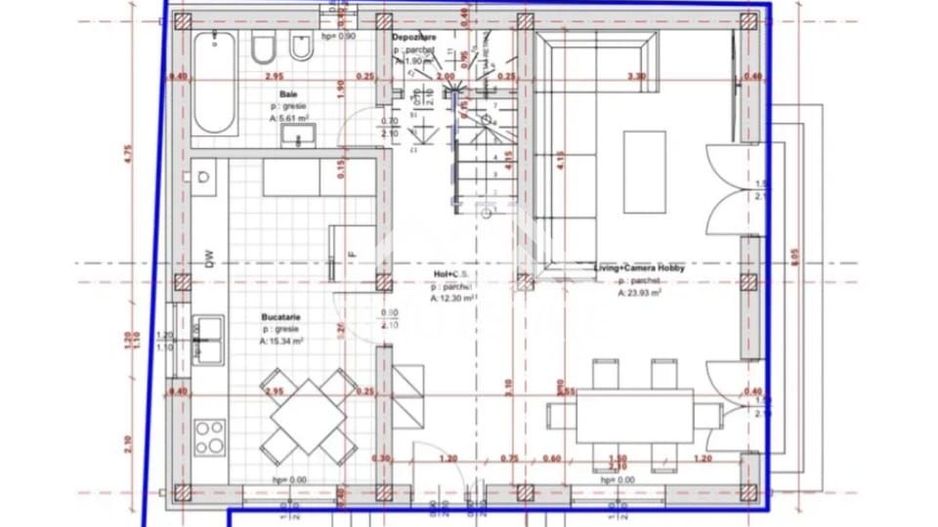
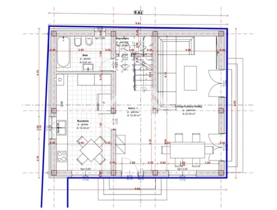
Casa intabulata, parter si etaj 120 mp utili, 8 mp balcon, pod 50 mp, Teren 335 mp

- Parter - hol larg de acces, living generos, bucătărie separată cu spatiu pentru servire masa, baie cu fereastra, casa scarii cu loc depozitare

- Etaj - dormitor matrimonial cu baie proprie, două dormitoare secundare, hol, baie și un balcon

- Pod cu placă de beton turnată, izolat cu vată minerală și dotat cu două geamuri - depozitare sau poti amenaja spatiu hobby

- Curte amenajată - pavaj si zona verde, gardul complet

Detalii tehnice - caramida 30 cm, izolatie polistiren 10/8, ferestre Salamander 5cam/3 foi sticla

- incalzire în pardoseala, centrala termica, instalații sanitare și electrice realizate, prize pentru aer condiționat în fiecare încapere și routere montate în tavane, prize, intrerupatoare

- Toate utilitățile racordate – gaz, curent, apă și canalizare !! – iar proprietatea dispune de_

- Curent trifazic cu posibilitate montare stație de încărcare electric auto și sistem pregătit pentru panouri solare.

- Automatizări complete - sistem de alarmă, camere video, interfon și poartă cu telecomandă.

​Casa se vinde semifinisata "la alb" - astfel poti crea decorul interior, asa cum iti place

Daca iti este favorabila locatia, spatiul, cat si pretul propus, hai sa vezi aceasta proprietate !! Visul tau ACASA, poate incepe chiar aici !!

Pret vanzare 350.000 Euro

Citește mai mult

  • Număr camere
    4
  • Dormitoare
    3
  • Număr bucătării
    1
  • Număr băi
    3
  • Geam la baie
    Da
  • Număr balcoane
    1
  • Număr locuri parcare
    2
  • Disponibilitate
    Imediat
  • Tip casă
    Individual
  • Stare interior
    Semifinisat
  • Suprafață utilă
    120 mp
  • Suprafață construită
    154 mp
  • Suprafață construită la sol (Amprentă)
    70.0 mp
  • Suprafață teren
    335 mp
  • Deschidere
    12 m
  • Acoperiș
    Țiglă
  • Stadiu construcție
    Finalizată
  • An construcție
    2025
  • Tip construcție
    Cărămidă
  • Număr etaje clădire
    1
  • Are pod
    Da

Facilități

Apă
Apometre
Bucătărie închisă
Canalizare
Centrală proprie
Contor electric
Contor gaz
Curent
Curent trifazic (380V)
Gaz
Geamuri termopan
Iluminat stradal
Încălzire prin pardoseală
Izolație exterioară
Mijloace de transport în comun
Parcare deschisă
Șapă
Străzi asfaltate
Supraveghere video
Telecomandă poartă acces auto
Ușă intrare metal
Vedere panoramică
Videointerfon
Diana Zicu
Consilier Imobiliar

0746107600


Solicită chiar acum o vizionare
Nume
Telefon
Email
Sună acum Solicită vizionare
Necesare:

Site-ul nu poate funcționa corect fără aceste cookie-uri. Vezi cookie-urile

Statistică:

Strângem statistici anonime despre voi, vizitatorii unici, pentru a vă îmbunătăți experiența dumneavoastră. Vezi cookie-urile

Marketing:

Pentru a ne promova mai eficient serviciile noastre, folosim cookies pentru a vă identifica și a vă oferi proprietăți și servicii personalizate. Vezi cookie-urile

Acest site folosește cookies, află detalii. Alege ce tipuri de cookies dorești să permitem: