ID CP2829258

Locuinta moderna si curte de 170 mp – Cartierul Arhitectilor Sibiu

ID CP2829258

172,000 €

Casă / Vilă cu 3 camere de vânzare
Arhitectilor - Calea Cisnadiei, Sibiu
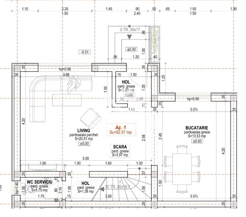
82.57 mp
2025

🏡 Casă modernă tip Quadruplex în Cartierul Arhitecților

82,57 mp utili | Curte privată 170 mp | Predare: începutul anului 2026

Descoperă confortul unei locuințe moderne, perfecte pentru familia ta, amplasată în inima unuia dintre cele mai căutate și apreciate cartiere din Sibiu.

Această casă face parte dintr-un imobil tip quadruplex (P+E) și îmbină perfect funcționalitatea, spațiul și designul contemporan. Bucură-te de liniște, intimitate și două locuri de parcare proprii – toate într-un cadru prietenos și sigur.

✨ Detalii & Compartimentare inteligentă

📐 Suprafață utilă: 82,57 mp

🌿 Curte generoasă: 170 mp

🚗 2 locuri de parcare incluse

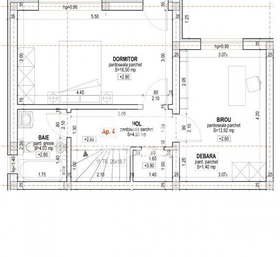
Parter:

Living luminos și spațios – 20,51 mp

Bucătărie modernă – 13,53 mp

Baie de serviciu cu geam – 1,75 mp

Holuri - 3,41 mp

Etaj:

Dormitor principal – 16,50 mp

Dormitor secundar/birou - 12.92 mp

Hol – 4,55 mp

Baie – 4,03 mp

Debara - 1.40 mp

Balcon – 5,70 mp

🏗️ Calitate și confort

Izolație exterioară cu polistiren EPS80 (10 cm)

Tâmplărie PVC Salamander (5 camere, 3 foi de sticlă, feronerie Maco)

Acoperiș complet izolat cu vată minerală (20 cm)

Ușă de acces termoizolantă Salamander

🏠 Interior la stadiul de alb – pregătit pentru personalizarea visului tău

Pereți finisați și zugrăviți cu lavabil alb

Instalații electrice și pentru curenți slabi (TV, internet)

Încălzire în pardoseală pe ambele niveluri, cu centrală în condensare

Contorizare individuală (gaz, curent, apă)

Racorduri funcționale în baie și bucătărie

💰 Preț: 142.148 € + TVA 21% (172.000 €)

📅 Predare: ianuarie 2026

Iti doresti un spațiu eficient, într-o zonă liniștită, dar aproape de tot ce ai nevoie? Această casă este alegerea ideală !

Comision zero!

✨ SIBIU ESTATE – Casa ta, povestea noastră!

Citește mai mult

  • Număr camere
    3
  • Dormitoare
    2
  • Număr bucătării
    1
  • Număr băi
    2
  • Geam la baie
    Da
  • Număr balcoane
    1
  • Număr locuri parcare
    2
  • Disponibilitate
    Imediat
  • Tip casă
    Individual
  • Suprafață utilă
    82.57 mp
  • Suprafață construită
    103.21 mp
  • Suprafață construită la sol (Amprentă)
    51.6 mp
  • Suprafață teren
    221 mp
  • Suprafață curte liberă
    170 mp
  • Suprafață terasă
    5.7 mp
  • Stadiu construcție
    În construcție
  • An construcție
    2025
  • Tip construcție
    Cărămidă
  • Număr etaje clădire
    1
  • Clasă Energetică
    B

Facilități

Acoperiș
Apă
Apometre
Canalizare
CATV
Centrală proprie
Contor gaz
Curent
Curte
Ferestre PVC
Gaz
Iluminat stradal
Încălzire prin pardoseală
Internet
Izolație exterioară
Mijloace de transport în comun
Străzi asfaltate
Ușă intrare PVC
Vopsea lavabilă
Florin Macaveiu - Sibiu Estate
Florin Macaveiu
Consilier Imobiliar

0751056375


Solicită chiar acum o vizionare
Nume
Telefon
Email
Sună acum Solicită vizionare
Necesare:

Site-ul nu poate funcționa corect fără aceste cookie-uri. Vezi cookie-urile

Statistică:

Strângem statistici anonime despre voi, vizitatorii unici, pentru a vă îmbunătăți experiența dumneavoastră. Vezi cookie-urile

Marketing:

Pentru a ne promova mai eficient serviciile noastre, folosim cookies pentru a vă identifica și a vă oferi proprietăți și servicii personalizate. Vezi cookie-urile

Acest site folosește cookies, află detalii. Alege ce tipuri de cookies dorești să permitem: