ID CP3030406

Apartament modern, aproape de natura - in Sibiu, langa lac -Comision 0

ID CP3030406

80,000 €

Apartament cu 2 camere de vânzare
Tiglari, Sibiu
36.4 mp
2025

Apartament nou tip studio – Lacul lui Binder, Sibiu

Descoperă un apartament modern și eficient, perfect pentru tineri sau investiție sigură!

Situat într-un bloc nou P+4, dotat cu lift de ultimă generație, chiar lângă Lacul lui Binder, într-o zonă liniștită cu acces complet asfaltat.

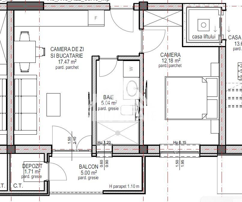
Suprafață utilă: 36,4 mp

Living + bucatarie -17,47 mp

Dormitor - 12,18 mp

Baie - 5,04 mp

Balcon - 5,00 mp

Spatiu depozitare 1,71 mp

Avantaje:

Încălzire în pardoseală

Balcon -

Spațiu de depozitare exterior - inchis

Lift modern

Loc de parcare propriu

Langa bază sportivă pentru practicarea sporturilor nautice, precum și zona de relaxare și petrecere a timpului liber - Complexul Lacul lui Binder

Predare: Vara 2026

Locuința se predă la alb, dar exista posibilitate de finisare la cheie pe gustul dvs.

Preț: 80 000 euro pret final (TVA inclus)

Comision 0%

Sibiu Estate – Casa ta, povestea noastră!

Citește mai mult

  • Tip apartament
    Apartament
  • Compartimentare
    Decomandat
  • Număr camere
    2
  • Dormitoare
    1
  • Număr bucătării
    1
  • Număr băi
    1
  • Geam la baie
    Da
  • Etaj
    1
  • Suprafață utilă
    36.4 mp
  • Suprafață construită
    45.5 mp
  • Suprafață totală
    41.4 mp
  • Disponibilitate
    Imediat
  • Confort
    1
  • Număr balcoane
    1
  • Imobil
    Bloc de apart.
  • An construcție
    2025
  • Număr etaje clădire
    4

Facilități

Apă
CATV
Centrală proprie
Curent
Ferestre PVC
Gaz
Încălzire prin pardoseală
Internet
Izolație exterioară
Vopsea lavabilă
Florin Macaveiu - Sibiu Estate
Florin Macaveiu
Consilier Imobiliar

0751056375


Solicită chiar acum o vizionare
Nume
Telefon
Email
Sună acum Solicită vizionare
Necesare:

Site-ul nu poate funcționa corect fără aceste cookie-uri. Vezi cookie-urile

Statistică:

Strângem statistici anonime despre voi, vizitatorii unici, pentru a vă îmbunătăți experiența dumneavoastră. Vezi cookie-urile

Marketing:

Pentru a ne promova mai eficient serviciile noastre, folosim cookies pentru a vă identifica și a vă oferi proprietăți și servicii personalizate. Vezi cookie-urile

Acest site folosește cookies, află detalii. Alege ce tipuri de cookies dorești să permitem: