ID CP3010656

Locul unde te simți acasă – apartament modern, luminos, în Șelimbăr

ID CP3010656

99,000 € TVA inclus

Apartament cu 2 camere de vânzare
Selimbar
45.1 mp
2025

🏡 Apartament modern cu 2 camere ,Comision 0 – intimitate, confort și un stil de viață echilibrat!

📍 Șelimbar, Str. Tudor Vladimirescu

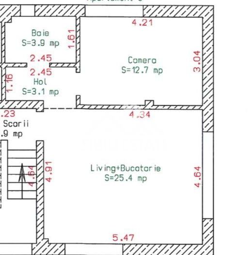
🧭 Suprafață utilă: 45 mp

🏢 Imobil exclusivist cu doar 5 apartamente

Descoperă un apartament cochet, situat la etajul 2, ideal pentru cei care își doresc liniște, intimitate și un spațiu eficient organizat, într-o zonă în plină dezvoltare.

✨ Compartimentare inteligentă:

🛏️ Dormitor primitor, perfect pentru relaxare

🍽️ Living luminos cu bucătărie open space – spațiul ideal pentru momente petrecute alături de cei dragi

🚿 Baie modernă, amenajată cu atenție la detalii

🚗 Loc de parcare inclus

✔️ Beneficiezi de finisaje contemporane, lumină naturală generoasă și acces rapid către Sibiu, ceea ce face din această proprietate o alegere excelentă atât pentru locuință proprie, cât și pentru investiție sigură.

💡 Un apartament care îți oferă mai mult decât un spațiu de locuit – îți oferă un stil de viață!

✨ Sibiuestate – Casa ta, Povestea Noastră ✨

📞 Programează o vizionare și convinge-te singur!

Citește mai mult

  • Tip apartament
    Apartament
  • Compartimentare
    Decomandat
  • Număr camere
    2
  • Dormitoare
    1
  • Număr bucătării
    1
  • Număr băi
    1
  • Geam la baie
    Da
  • Etaj
    2
  • Suprafață utilă
    45.1 mp
  • Suprafață construită
    56 mp
  • Suprafață totală
    45.1 mp
  • Disponibilitate
    Imediat
  • Orientare
    Sud-Vest
  • Confort
    1
  • Număr locuri parcare
    1
  • Imobil
    Casă / Vilă
  • Stadiu construcție
    Finalizată
  • An construcție
    2025
  • Tip construcție
    Cărămidă
  • Număr etaje clădire
    2
  • Are pod
    Da
  • Clasă Energetică
    B

Facilități

Apă
Apometre
Bucătărie deschisă
Canalizare
Centrală proprie
Contor electric
Contor gaz
Curent
Faianță
Ferestre PVC
Gaz
Gresie
Iluminat stradal
Încălzire prin pardoseală
Internet
Izolație exterioară
Nemobilat
Parchet
Străzi asfaltate
Uși interior celulare
Vopsea lavabilă
Lucian Boita - Sibiu Estate
Lucian Boita
Consilier Imobiliar

0741330878


Solicită chiar acum o vizionare
Nume
Telefon
Email
Sună acum Solicită vizionare
Necesare:

Site-ul nu poate funcționa corect fără aceste cookie-uri. Vezi cookie-urile

Statistică:

Strângem statistici anonime despre voi, vizitatorii unici, pentru a vă îmbunătăți experiența dumneavoastră. Vezi cookie-urile

Marketing:

Pentru a ne promova mai eficient serviciile noastre, folosim cookies pentru a vă identifica și a vă oferi proprietăți și servicii personalizate. Vezi cookie-urile

Acest site folosește cookies, află detalii. Alege ce tipuri de cookies dorești să permitem: