ID CP2894679

Apartament 2 camere decomandat, Selimbar, Doamna Stanca

ID CP2894679

110,110 €

Apartament cu 2 camere de vânzare
Selimbar
56 mp
2025

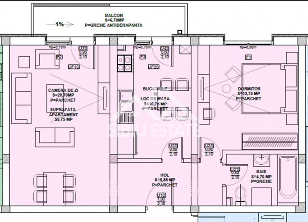
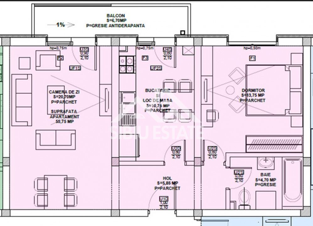
🏡 Apartament 2 camere – Str. Doamna Stanca |56,15 mp utili + balcon 6,7 mp | Loc parcare inclus

Living spațios separat – loc perfect pentru relaxare și socializare

Bucătărie închisă – oferă intimitate și confort la gătit

Dormitor confortabil – ideal pentru odihnă

Baie modernă – bine proporționată

Balcon de 6,7 mp

Detalii constructive:

Exterior la cheie

Izolație termică cu polistiren expandat de 10 cm (EPS 80)

Tencuială decorativă, tâmplărie PVC cu 3 foi de sticlă și protecție solară, 5 camere de ventilare

Gresie antiderapantă pe balcon

Casa scării finisată complet: gresie, balustrade, cutii poștale individuale, interfon

Toate utilitățile branșate și contorizare individuală (gaz, apă, curent)

Stradă, trotuare și parcări amenajate cu dale de beton, iluminat public și spații verzi

Interior la alb:

Ușă metalică de acces placată cu MDF

Încălzire în pardoseală

Pereți zugrăviți cu lavabil alb

Instalație electrică completă (tablou general individual, doze, prize și întrerupătoare Schneider)

Instalație termică multistrat, centrală termică în condensație Bosch

💰 Preț: 110.110 € – finisat la alb Comision 0% TVA INCLUS

🚗 Loc de parcare inclus în preț

Sibiuestate – Casa ta, Povestea noastră

Citește mai mult

  • Tip apartament
    Apartament
  • Compartimentare
    Decomandat
  • Număr camere
    2
  • Dormitoare
    1
  • Număr bucătării
    1
  • Număr băi
    1
  • Etaj
    3
  • Suprafață utilă
    56 mp
  • Suprafață construită
    70 mp
  • Suprafață totală
    62.35 mp
  • Disponibilitate
    Imediat
  • Orientare
    Sud
  • Confort
    1
  • Număr balcoane
    1
  • Imobil
    Bloc de apart.
  • Stadiu construcție
    Finalizată
  • An construcție
    2025
  • Tip construcție
    Beton
  • Număr etaje clădire
    3
  • Clasă Energetică
    B

Facilități

Apă
Apometre
Canalizare
CATV
Centrală proprie
Contor gaz
Curent
Ferestre PVC
Gaz
Iluminat stradal
Încălzire prin pardoseală
Interfon
Internet
Izolație exterioară
Străzi asfaltate
Ușă intrare metal
Vedere spre oraș
Vopsea lavabilă
Florin Imre - Sibiu Estate
Florin Imre
Consilier Imobiliar

0756029273


Solicită chiar acum o vizionare
Nume
Telefon
Email
Sună acum Solicită vizionare
Necesare:

Site-ul nu poate funcționa corect fără aceste cookie-uri. Vezi cookie-urile

Statistică:

Strângem statistici anonime despre voi, vizitatorii unici, pentru a vă îmbunătăți experiența dumneavoastră. Vezi cookie-urile

Marketing:

Pentru a ne promova mai eficient serviciile noastre, folosim cookies pentru a vă identifica și a vă oferi proprietăți și servicii personalizate. Vezi cookie-urile

Acest site folosește cookies, află detalii. Alege ce tipuri de cookies dorești să permitem: